La classe verte

Colocation étudiante

habitat etudiants hebergements

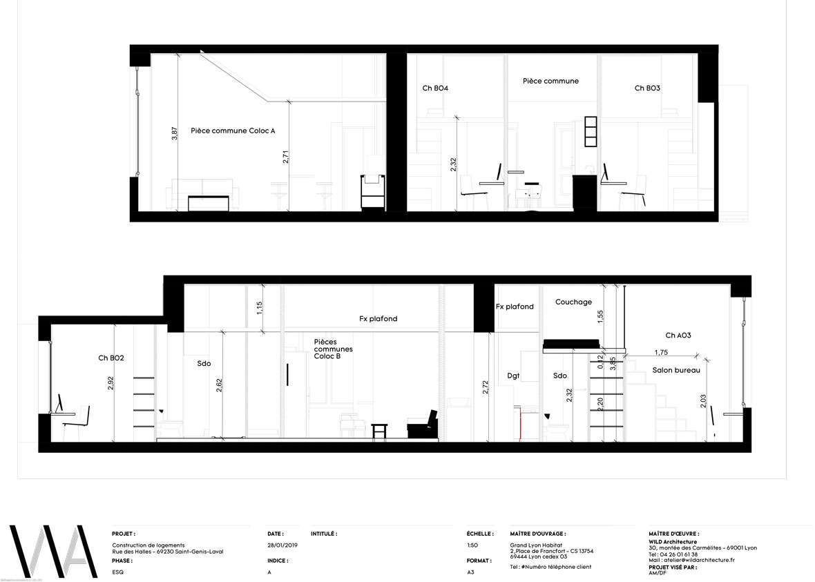
Ce projet concerne la restructuration d’un logement dans le quartier St Roch à Saint-Etienne. L’appartement ancien de 150m² avec parquet sur lambourdes, cheminées et belle hauteur sous-plafond a été divisé en deux colocations étudiantes.

L’objectif pour cet appartement aux belles prestations était de mélanger des matériaux bruts et anciens avec des touches plus contemporaines.

 

Chaque colocation comprend 4 chambres composées chacune d’un espace de couchage, d’un espace de travail et d’une salle de bain ainsi qu’un espace de vie commune avec salon, cuisine et espace détente. La belle hauteur sous plafond de 3,50m a été exploitée afin d’offrir un espace couchage et un espace travail/détente distinct contrairement à la plupart des chambres étudiantes où le lit fait souvent office de canapé et bureau à la fois ! Le couchage a donc été installé en partie haute en fond de chambre sous lequel se trouve la salle de bain privative ainsi que l’entrée de chaque chambre. C’est donc une configuration typique des pentes de la croix rousse que nous avons conçu pour cet appartement stéphanois ! Un meuble escalier de rangement avec un garde-corps en filet permet d’accéder à l’espace couchage.

Côté fenêtre, on retrouve toute la hauteur sous plafond offrant un espace baigné de lumière où on peut travailler confortablement et même accueillir des amis ! L’espace commun comporte une zone cuisine, un coin repas et un coin séjour lumineux bénéficiant de toute la hauteur.

 

Nous avons tenu à préserver les matériaux nobles de l’appartement afin de « recycler » au maximum les ressources déjà présentes : les parquets ont été poncés, les portes en bois ont été simplement sablées et réutilisées et les encadrements en briques des ouvertures ont été sablés et conservés. Les finitions en peinture lisse sur les murs et le mobilier moderne viennent contraster avec les matériaux bruts de l’appartement.

 

La notion de confort acoustique est primordiale dans une colocation où les nuisances peuvent rapidement devenir problématique tant au sein de la colocation qu’envers le voisinage. Nous avons donc assuré une isolation phonique vis-à-vis des tiers au niveau du plafond, mais aussi en interne avec des cloisons SAD 120 entre chaque chambre pour assurer le confort de chacun.

Année
2019
Lieu
Saint-Etienne (42)
Maître d'ouvrage
Privé
Mission wild architecture
ESQ APD
Surface \\ Budget
150 m² \ 100 000 €