Assos'

Maison des associations

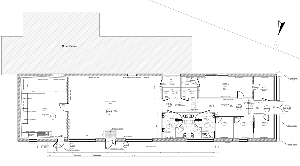
equipement restructuration association

Fort d’un milieu associatif très actif, la ville de Jons a acquis un ancien entrepôt pour accueillir la nouvelle maison des associations.  Le projet a ainsi  pour objectif de restructurer l’actuel bâtiment en réalisant une intervention principalement sur le second oeuvre. Un travail sur la continuité  des espaces, notamment au niveau des sols et des plafonds, a été mené pour redonner une cohérence à l’espace et maximiser les apports lumineux. Un plafond incliné vient ainsi accueillir le visiteur depuis l’entrée jusqu’à la salle de réception. Construit en plusieurs époques, le bâtiment existant n’avait pas un niveau constant ; un système de rampe intérieure assure une continuité entre tous les espaces. De plus, une rampe extérieure est positionnée le long du bâtiment afin de garantir un accès direct à la salle de réception pour les PMR. Des murs colorés viennent également structurer la salle de réception. Le choix des couleurs a été effectué en concertation avec les services de la mairie de Jons.

Année
2014
Lieu
Jons (69)
Maître d'ouvrage
Ville de Jons
Mission wild architecture
DET
Surface \\ Budget
250 m² \ 160 000 € HT
Entreprises
Gros oeuvre : RUIZ BTP / menuiseries extérieures : DB Verre / menuiseries intérieures : Toffoletti / plâtrerie peinture : Lardy / revêtement de sols : MMJ Carrelage / plomberie CVC : Ferrard & Cie / electricité : IES